最新发布第2页
排序
装修干货 | 七大空间这36个基础细节,能解决你大部分装修问题!
装修细节涉及到空间规划和功能布局,合理处理这些细节可以使得居住空间更加符合个人的使用需求和生活习惯哦!一起来看看吧~ 玄关 1.收纳需求:加入储物柜、鞋柜或挂钩等组织和收纳家具,方便存...
冬季装修软装搭配攻略:用温暖细节,让新家秒变治愈系
不同于春夏的清爽简约,冬季软装更注重“保暖感+氛围感”,通过色彩、材质、灯光的巧妙组合,能让冰冷的硬装瞬间升温,打造出治愈又舒适的冬日家居。 今天尊装网就分享这份冬季软装搭配攻略,帮...
装修效果图 | 129㎡现代轻奢,自然舒适的中性色,华丽精致的档次
在这套129平米的现代轻奢风格装修案例中,在中性色的空间基础下,布置上现代华丽的家具,在软装细节上加入轻奢范的设计元素,营造出一种舒适高级的空间氛围感。 客厅 客厅与餐厅以现代大方的空...
装修小tips | 装修必看灯光设计攻略,灯光选对,家美10倍!
灯光不仅能满足基础照明需求,不同的灯光设计,还会赋予同一个空间截然不同的氛围感受。 今天,就让我们揭开不同空间灯光设计的奥秘,打造属于每个空间的独特光影魅力。 客厅:温馨与活力的交融...
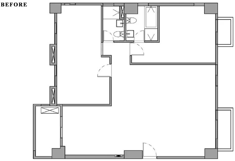
113㎡简约原木风住宅装修效果图
三口之家的住房,面积113㎡,屋主对于风格的要求为简约温馨,并详细的整理了各个空间的功能和收纳需求,让装修过程进行得比较顺利。 接下来看看实际落地效果,整体自然温馨居住很舒适。 户型图 ...
把“温柔的时光感”搬进家里,温柔感装修效果图
推开家门的瞬间,暖调的光线顺着百叶帘的纹路淌在地板上,带着植物影子的光斑轻轻晃动——这样的画面,大概是很多人对“家”最柔软的想象。 这组案例里的家,就像把“慢下来的时光”做成了容器...
装修小白看过来,6个软装技巧让你家美到犯规!
都说软装是家的 “灵魂彩妆”,选对了能让空间瞬间焕发光彩,选错了却可能让精心装修的房子秒变 “出租屋风”。 不少装修新手面对琳琅满目的软装单品时总会犯愁:家具怎么搭才不杂乱?颜色配不...









