132㎡三口之家,干净轻松家装装修效果图

这是一套三口之家,132㎡的房子,空间开阔通透,松弛氛围感直接拉满。很喜欢这个装修效果。

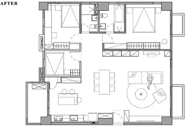
户型图

图片[1]-132㎡三口之家,干净轻松家装装修效果图-尊装网
图片[2]-132㎡三口之家,干净轻松家装装修效果图-尊装网

入户

图片[3]-132㎡三口之家,干净轻松家装装修效果图-尊装网

客厅

图片[4]-132㎡三口之家,干净轻松家装装修效果图-尊装网
图片[5]-132㎡三口之家,干净轻松家装装修效果图-尊装网
图片[6]-132㎡三口之家,干净轻松家装装修效果图-尊装网

厨房

图片[7]-132㎡三口之家,干净轻松家装装修效果图-尊装网

主卧

图片[8]-132㎡三口之家,干净轻松家装装修效果图-尊装网
图片[9]-132㎡三口之家,干净轻松家装装修效果图-尊装网

次卧

图片[10]-132㎡三口之家,干净轻松家装装修效果图-尊装网
图片[11]-132㎡三口之家,干净轻松家装装修效果图-尊装网

儿童房

图片[12]-132㎡三口之家,干净轻松家装装修效果图-尊装网
图片[13]-132㎡三口之家,干净轻松家装装修效果图-尊装网
© 版权声明
THE END
喜欢就支持一下吧
点赞9 分享
评论 抢沙发

请登录后发表评论

    暂无评论内容