房屋基础信息
项目面积:146㎡
设计风格:现代简约
攒了多年经验值,把家打造成 “网上简约风合集” 实体版 —— 时尚得毫不费力,温馨得刚好躺平,简洁到连灰尘都不好意思留下,梦想中的家大概就是这模样吧~
![图片[1]-装修效果图,146㎡极简三居惊艳蜕变!教科书级装修-尊装网](https://cos.zunzhuang.com/wp-content/uploads/2025/11/image-81-1024x819.png?imageMogr2/format/webp/interlace/1)
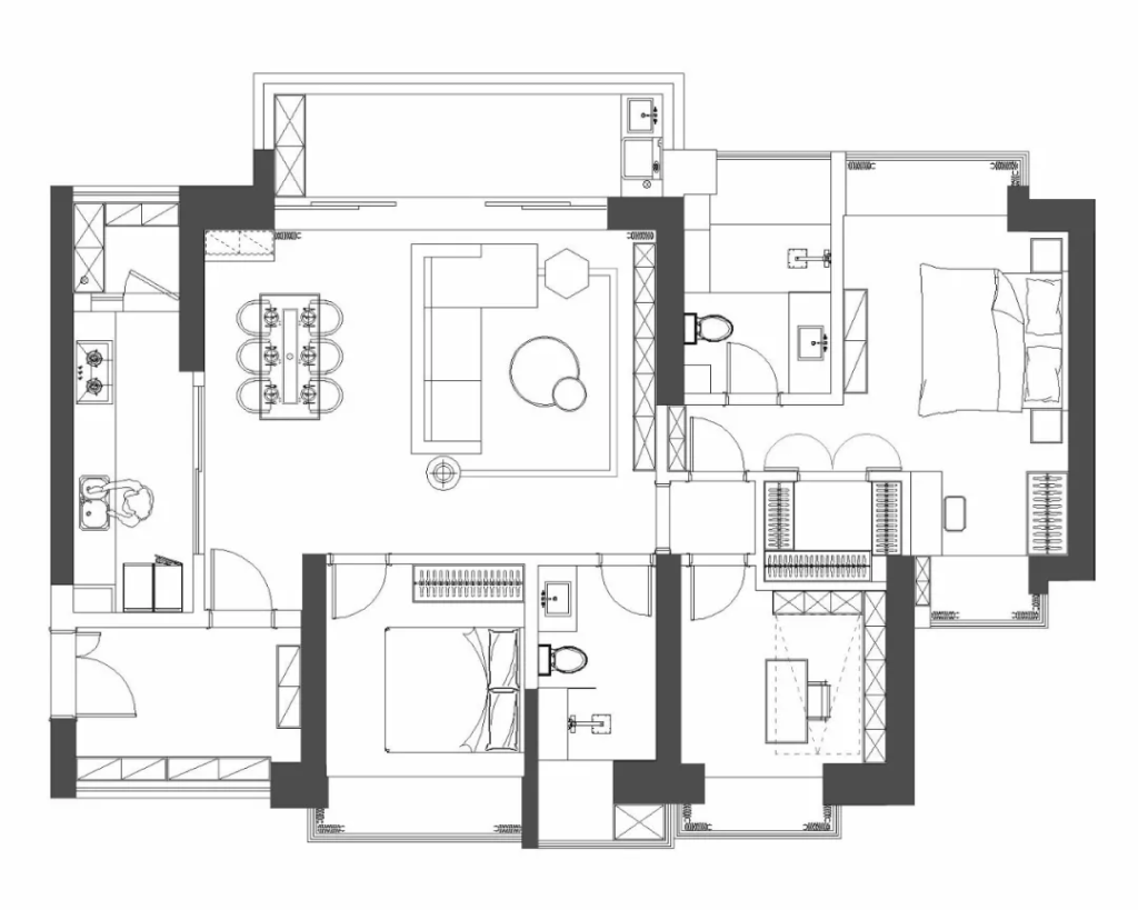
平面布置图
![图片[2]-装修效果图,146㎡极简三居惊艳蜕变!教科书级装修-尊装网](https://cos.zunzhuang.com/wp-content/uploads/2025/11/image-82-688x1024.png?imageMogr2/format/webp/interlace/1)
入户这块地儿可真敞亮,还带采光点,配着灰白大理石瓷砖,气派得很。
端景台、鞋柜加穿衣镜,颜值实力双在线,实用又养眼,简直完美。
![图片[3]-装修效果图,146㎡极简三居惊艳蜕变!教科书级装修-尊装网](https://cos.zunzhuang.com/wp-content/uploads/2025/11/image-82-683x1024.png?imageMogr2/format/webp/interlace/1)
餐厅这地儿,大理石餐桌配浅咖皮椅,自带高级感。
头顶吊灯玩起小创意,瞬间时髦值拉满。
角落柜子默默扛下收纳大旗,好看又能干。
![图片[4]-装修效果图,146㎡极简三居惊艳蜕变!教科书级装修-尊装网](https://cos.zunzhuang.com/wp-content/uploads/2025/11/image-83-1024x683.png?imageMogr2/format/webp/interlace/1)
客餐厅在横厅里玩起 “开放式恋爱”,空间敞亮得能原地转圈圈。
电视墙改头换面成定制柜,白加黑配色玩得溜,简洁又耐看,颜值在线还能装。
![图片[5]-装修效果图,146㎡极简三居惊艳蜕变!教科书级装修-尊装网](https://cos.zunzhuang.com/wp-content/uploads/2025/11/image-83-818x1024.png?imageMogr2/format/webp/interlace/1)
再看看客厅这软装搭配:L 形布艺沙发蜷着特舒服,半圆茶几圆滚滚的讨喜,彩色地毯一铺,轻松感直往骨子里钻,好看又好躺。
![图片[6]-装修效果图,146㎡极简三居惊艳蜕变!教科书级装修-尊装网](https://cos.zunzhuang.com/wp-content/uploads/2025/11/image-84-1024x683.png?imageMogr2/format/webp/interlace/1)
厨房是条 “细长条”,橱柜一字排开特规整。
吊柜装了玻璃门,里头啥宝贝都看得清,拿取方便到想给设计师加鸡腿。
![图片[7]-装修效果图,146㎡极简三居惊艳蜕变!教科书级装修-尊装网](https://cos.zunzhuang.com/wp-content/uploads/2025/11/image-85-1024x989.png?imageMogr2/format/webp/interlace/1)
卧室床头墙玩起 “拼色游戏”,同是木饰板却上下分家,颜色不同层次感立马出来。
彩色地毯来凑趣,给这方小天地添了把活泼劲儿,耐看又好玩。
![图片[8]-装修效果图,146㎡极简三居惊艳蜕变!教科书级装修-尊装网](https://cos.zunzhuang.com/wp-content/uploads/2025/11/image-85-683x1024.png?imageMogr2/format/webp/interlace/1)
主卧藏着个迷你衣帽间,虽不大但胜在能 “步入式” 挑衣服。
每天在这儿翻箱倒柜选穿搭,快乐值都比平时多三分,小而美还特得宠。
![图片[9]-装修效果图,146㎡极简三居惊艳蜕变!教科书级装修-尊装网](https://cos.zunzhuang.com/wp-content/uploads/2025/11/image-85-1024x683.png?imageMogr2/format/webp/interlace/1)
次卧床头墙贴了做旧纹理壁纸,自带复古滤镜。
衣柜靠床头留了块空地,省了床头柜还能多塞东西,这波操作够机灵,实用又有范儿。
![图片[10]-装修效果图,146㎡极简三居惊艳蜕变!教科书级装修-尊装网](https://cos.zunzhuang.com/wp-content/uploads/2025/11/image-86-1024x683.png?imageMogr2/format/webp/interlace/1)
书房,深木色柜子书桌往那一站,格调自动提了三个档;浅灰墙上挂着地图,连发呆都像在规划环球旅行 —— 这书房,装的是书,显的是品味,顺便承包了所有 “假装很忙” 的氛围感。
![图片[11]-装修效果图,146㎡极简三居惊艳蜕变!教科书级装修-尊装网](https://cos.zunzhuang.com/wp-content/uploads/2025/11/image-86-1024x683.png?imageMogr2/format/webp/interlace/1)
卫生间通铺大理石,花纹独特到像自带 “限量款” 标签;淋浴区那个大窗台更绝,洗浴用品往那一摆,拥挤是不存在的,只剩 “随便放” 的豪迈 —— 这卫生间,洗澡是正经事,秀收纳也是。








暂无评论内容